Adosado en venta en Callao Salvaje, Santa Cruz Tenerife (Rokabella)

venta: 1.525.000 €
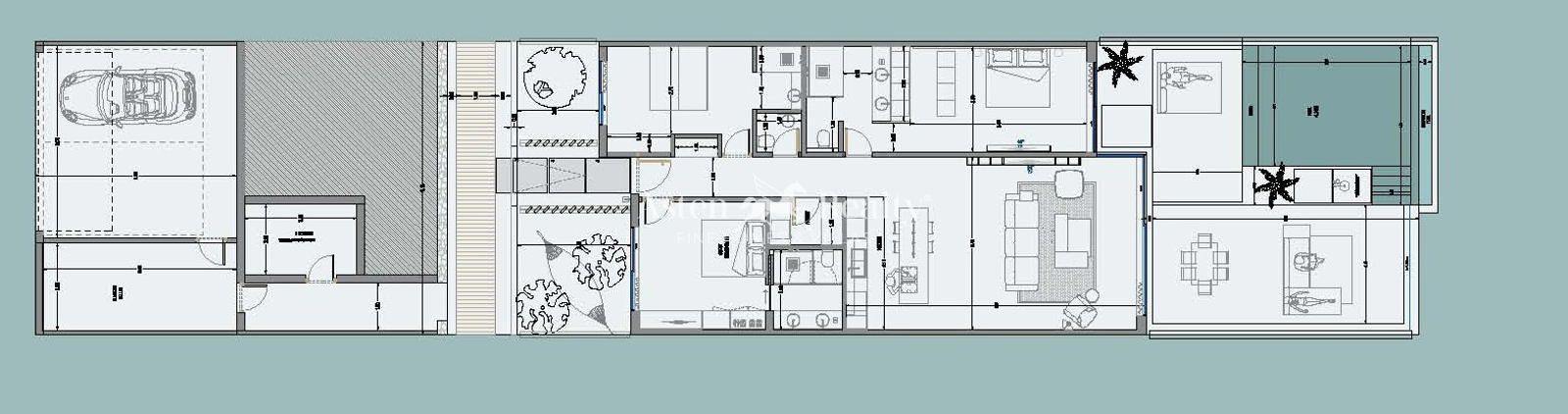
Ref. 9745 Superficie 340 m2 Terraza 99 m2 Habitaciones 3 Baños 4 Garaje 2
Descripción

¡Bungalow de lujo en una espectacular zona de Costa Adeje situado en primera línea de playa!

El bungalow está construido de forma que desde la terraza se pueda disfrutar siempre del sol durante todo el día, así como de las formidables vistas de la playa y el mar.

La vivienda cuenta con tres habitaciones, cuatro baños, salón-comedor, cocina equipada con isla y terraza delantera con piscina privada. Materiales contemporáneos y de calidad.

El precio incluye dos plazas de garaje y trastero.

El edificio está situado en el borde extremo del pintoresco pueblo de Callao Salvaje, donde se respira un tranquilo ambiente estival. Cerca de la playa, encontrará pequeños y acogedores restaurantes que ofrecen una amplia variedad gastronómica.

Rokabella es una de las zonas con mayor expansión de Tenerife, con varios desarrollos de lujo durante los últimos años. Se encuentra a unos 5 km del golf, 10 km de las zonas turísticas de Tenerife y a 20 minutos del Aeropuerto de Tenerife Sur. Una excelente oportunidad de inversión.


Referencia Asten Realty: 7785.

Características
Precio Venta 1.525.000 €
Precio/m² 4.485
Año de construcción 2025
Construidos 340 m2
Útiles 134 m2
Dormitorios 3
Baños 4
Cocina Amueblada
Trastero
Terraza
Garajes 2
Carp. Interior Alto Standing
1ª línea de playa
Ascensor
Aire acondicionado
Piscina privada
Garaje
Zonas comunes
Calificación Energética (E) VER
Luz
Agua
Ubicación
Escalas de eficiencia


-
-

Contacto

Si deseas más información sobre esta propiedad, por favor, rellena el formulario.

 Sí, he leído y/o acepto las Condiciones de uso y la Política de privacidad
Contacta con tu asesor
Durdica Raden (Venta)
Avenida Bruselas 18, Terrazas del Duque
Local 14 38660 – Adeje
Tus Favoritos