Suelo urbano residencial en Adeje con proyecto incluido y obra iniciada

Adeje
venta: 225.000 €
Ref. 9902
Descripción

Oportunidad de inversión y autopromoción en Adeje, uno de los municipios con mayor demanda residencial del sur de Tenerife. Se ofrece suelo urbano situado en zona residencial consolidada, dentro de una parte de la parcelación de Adeje, con entorno tranquilo y todos los servicios cercanos.

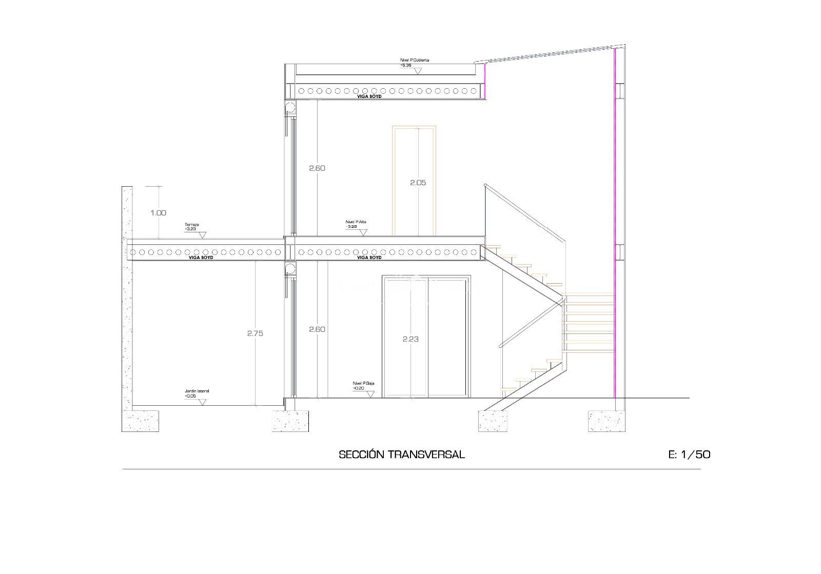
La parcela cuenta con una superficie de 116 m² y se vende con proyecto arquitectónico incluido en el precio. La propiedad dispone de licencia concedida y cimentación ya realizada, lo que supone un importante avance técnico y administrativo para retomar el desarrollo.

Según el proyecto, se contempla una vivienda unifamiliar de 145,74 m² de superficie total construida computable, distribuida en dos plantas, con una concepción moderna, funcional y muy bien adaptada al uso residencial.

Distribución proyectada:

 • Planta baja – 65 m² construidos:

Espacioso salón con cocina integrada, con acceso directo a un espacio exterior de jardín, aseo, zona de almacén y plaza de parking privada para un vehículo.

 • Planta primera – 70 m² construidos:

Dos dormitorios, dos baños completos y una terraza, aportando luminosidad y un agradable espacio exterior.

En la parcela ya se han ejecutado los trabajos de desmonte y cimentación, lo que representa un ahorro significativo en tiempo y costes y facilita la reactivación de la obra conforme al proyecto existente.

Ubicada en una zona residencial de Adeje, con excelente proyección y alta demanda tanto para vivienda habitual como para inversión, esta propiedad ofrece una base sólida para desarrollar una vivienda unifamiliar en uno de los municipios más valorados del sur de la isla.

Referencia Asten Realty 9902.

Características
Precio Venta 225.000 €
Precio/m² 1.940
Año de construcción 2027
Parcela 116 m2
Luz
Agua
Teléfono
Ubicación
Escalas de eficiencia



Contacto

Si deseas más información sobre esta propiedad, por favor, rellena el formulario.

 Sí, he leído y/o acepto las Condiciones de uso y la Política de privacidad
Contacta con tu asesor
Victoria Ermantovich
Avenida Bruselas 18, Terrazas del Duque
Local 14 38660 – Adeje
Tus Favoritos